Gillygate

Heritage + Conservation, Residential

Private Residential, York

Stunning Modern Extension

Floor to Ceiling Glazing Throughout

Culturally and Historically Sensitive Location

Project Completed Summer 2023


go back
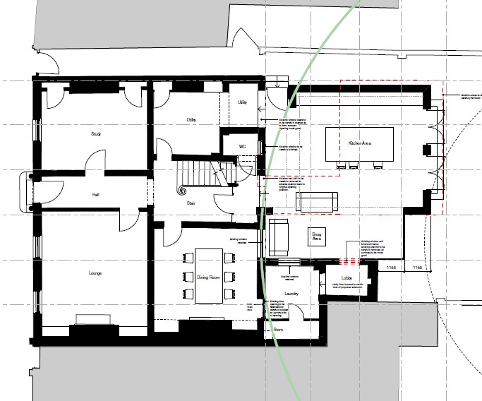
This project delivers a sensitive yet striking single-storey extension to a Grade II* listed home on Gillygate, York, where the rear garden meets the iconic Scheduled Ancient Monument City Walls. With such a prominent heritage backdrop, the design demanded a careful balance between preservation and modern living.

The scheme replaces a dated waiting-room addition from the building’s former life as a GP surgery. In its place, a simple and elegant brick-built volume steps forward as a contemporary counterpart to the historic structure. A light-touch, frameless glazed link creates a clear visual break, ensuring the original architecture remains celebrated while the new extension brings fresh functionality.

Clean lines, restrained detailing and a minimalist material palette give the extension a calm, modern character that sits comfortably alongside the heritage setting. The contrast between old and new is intentional yet harmonious, highlighting the beauty of both.

By responding thoughtfully to the site’s historical significance while embracing a modern design language, the project enhances the home’s liveability and enriches its connection with the surrounding cityscape.